Call Us Today

(239) 481-2500

Lee County, Florida
The Landings Realty Fort Myers Homes

3301 Del Prado Boulevard S, Cape Coral, FL 33904 (MLS # 2026006367)

Save to Favorites
Print
Share

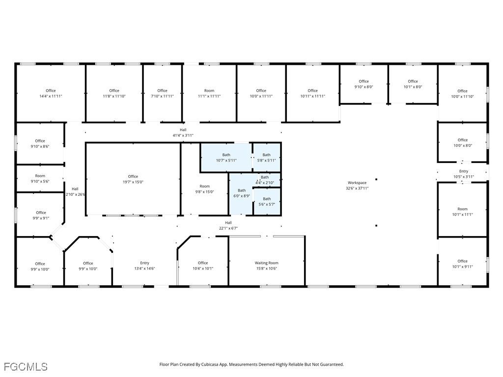
Enjoy the possibilities with this versatile, high-visibility, waterfront building in lively Southeast Cape Coral. Out front you have Del Prado Blvd. with over 43,000 vehicles passing by daily and out back there's a serene canal with access to the Gulf for boating, fishing, dining and island-beach-hopping. Zoning permits a variety of uses so work hard then play hard or combine the two and live your best Florida life! The modern 1994 concrete block building with new paint and carpet features 4,848 SF of cooled space with a current configuration serving the owner's business with 20 bright offices in a variety of sizes, foyer entry, reception, waiting area, kitchen, two bathrooms, a conference room, and a large open multi-use space. Outside there are 36 paved parking spaces, monument signage, and easy access to/from Del Prado Blvd. and just 35 minutes to RSW Airport. The waterfront features a concrete ramp leading to a concrete cantilevered dock, a sitting/lunch area, a 241' concrete seawall and a variety of palm trees and plants. Whether it's an inspired MEDICAL, DENTAL or other PROFESSIONAL OFFICE location, PHARMACY, PET SERVICES business, DAY CARE, ASSISTED LIVING, or RELIGIOUS FACILITY, the options are many and varied, so seize the opportunity to create something great for yourself and the city! (THIS IS AN ACTIVE BUSINESS. PLEASE DO NOT ENTER ONTO THE PROPERTY WITHOUT AN APPOINTMENT.)

DAYS ON MARKET 73 LAST UPDATED 3/10/2026
YEAR BUILT 1994 COUNTY Lee
STATUS Pending PROPERTY TYPE(S) Commercial


ADDITIONAL DETAILS
AIR CONDITIONING Yes
AREA CC12 - Cape Coral Unit 7-15
LOT 0.689 acre(s)
LOT DESCRIPTION Waterfront
LOT DIMENSIONS 0.689
STORIES 1
TAXES 16549.81
UTILITIES Electricity Available, Phone Available, Sewer Available, Water Available
WATERFRONT Yes
WATERFRONT DESCRIPTION Canal Access, Navigable Water, Seawall
ZONING P



 
CONTACT US ABOUT 3301 DEL PRADO BOULEVARD S
 / 
We respect your online privacy and will never spam you. By submitting this form with your telephone number you are consenting for Lori Emmons to contact you even if your name is on a Federal or State "Do not call List".

Listing provided by Peter Davis, Carney Realty & Associates Inc
Information being provided is for consumers' personal, non-commercial use and may not be used for any purpose other than to identify prospective properties consumers may be interested in purchasing. Listing information is deemed reliable, but not guaranteed.

This IDX solution is (c) Diverse Solutions 2026.